Dettagli
SANTA GIUSTINA – LOCALITÀ SAN MARTINO RUSTICO TIPICO
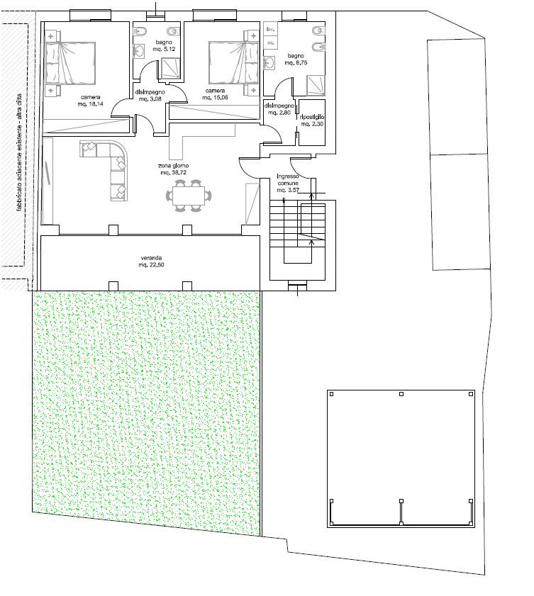
Fabbricato rurale da ristrutturare ricco di potenzialità.
Dotato della tipica struttura alla bellunese con un magnifico “piol” affacciato con vista splendida sulla Valbelluna, si sviluppa su tre livelli più piano mansardato. E’ compreso di annesso e giardino.
info@limanacostruzioni.it
0437 753684
335 5954636
Località:Santa Giustina
Tipologia:Casa Intera
Superficie:570 m²
Locali: piani interi, annesso per autorimessa, ampio giardino di proprietà











