Dettagli
Complesso residenziale sito nel centro dell’abitato di Ponte nelle Alpi. In classe energetica B, con ottima esposizione commerciale. Finiture di pregio
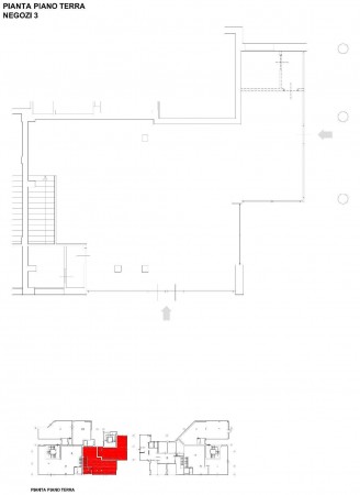
Negozio composto da ampio spazio con magazzino raggiungibile da scale interne.
Possibilità di dividerlo per realizzarne 2 unità piu piccole trattabili singolarmente.
info@limanacostruzioni.it
0437 753684
335 5954636
Località:Ponte nelle Alpi
Tipologia:Immobile – Negozio
Superficie:147 m², esterna 17 m²
Locali:1 bagno
Piano:Piano terra di 3 piani, con ascensore
Anno di Costruzione:2009
Classe Energetica:B





